COMPLEJO
BENJAMÍ­N II

COMPLEJO BENJAMÍ­N II COMPLEJO BENJAMÍ­N II

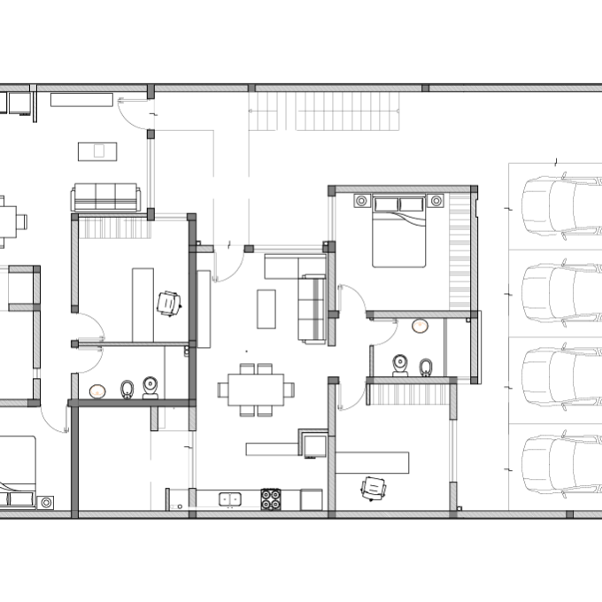
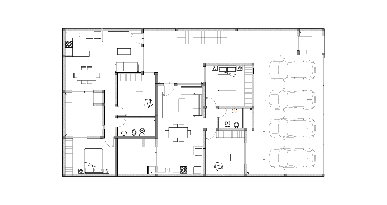
Nuestro Benjamín creció! Finalizado en Diciembre 2024, es una continuación de nuestro primer Complejo Benjamín I, finalizado en 2020, el cual se encuentra en el lote continuo. Formado por 8 modernos departamentos de 2 dormitorios cada uno, amplias cocinas living comedor, y una cómoda churrasquera techada en su patio o balcón privado. Cocheras con acceso independiente. Enfocados en funcionalidad, luminosidad y ubicación estratégica.
Inicio ENERO 2023 - Entrega ENERO 2025

DEPARTAMENTOS

Inicio 2023 - Finalización Estimada ENERO 2025

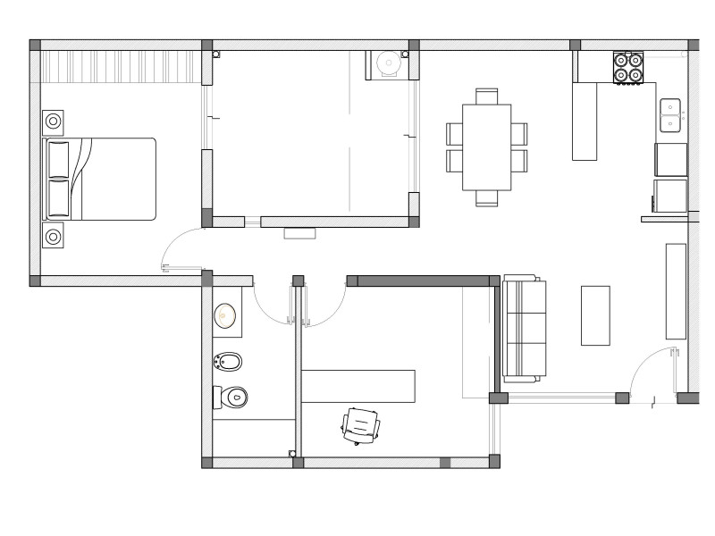
PRIMERA ETAPA
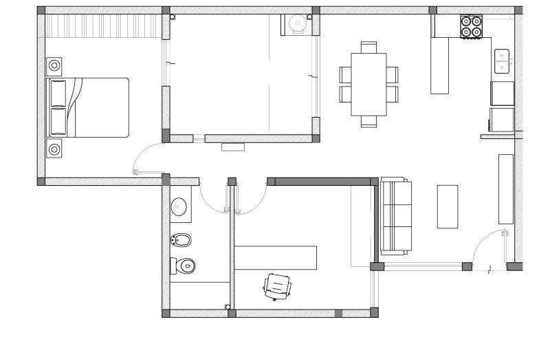
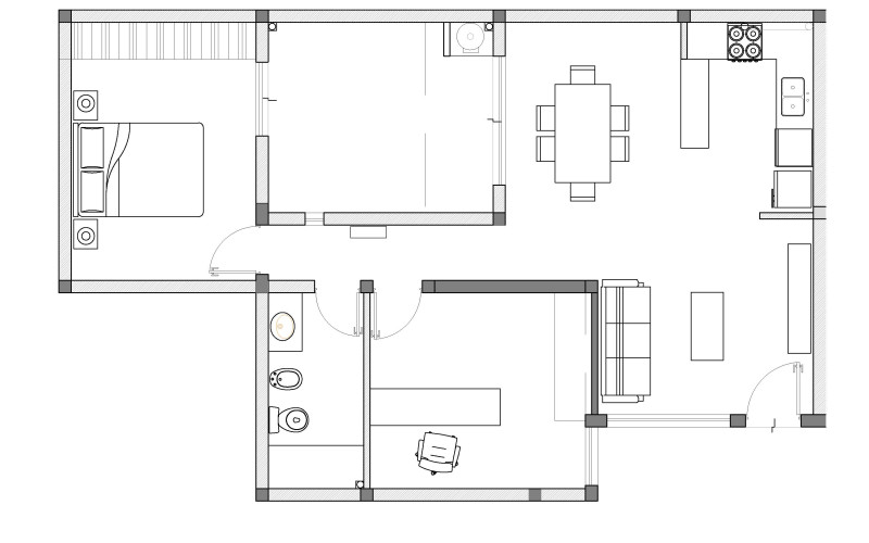
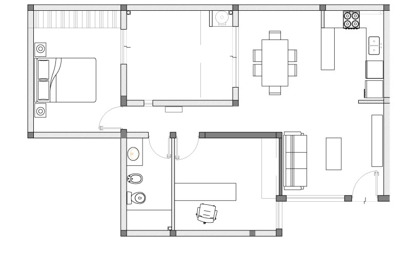
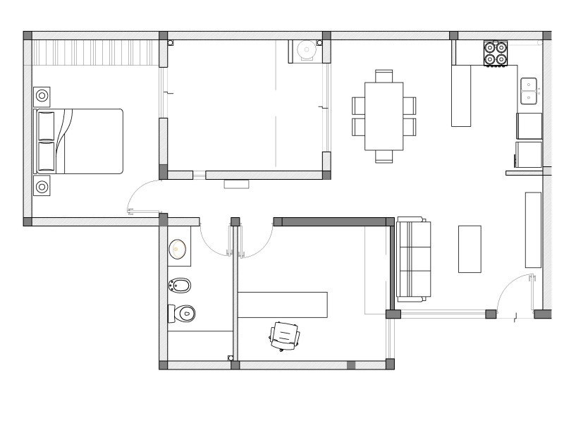
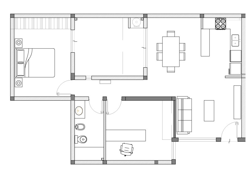
DEPARTAMENTO I

CARACTER͍STICAS:
• 71 mts2 techados propios + 9 mts2 patio con churrasquera + cochera.
• 2 amplias habitaciones.
• Cocina con bajo mesada y alacena, bacha y griferí­a de primera marca.
• Baño revestido en porcelanato, con sanitarios y griferí­as de primera marca.
• Placares amplios con correderas de aluminio. Espejo de piso a techo.
• Aberturas doble vidrio DVH de gran tamaño, corredizas color bronce colonial, de primera marca.
• Instalaciones para Aire Acondicionado en cada ambiente.
• Cochera privada.
• Churrasquera.
• Incluye Termotanque, Estufa, Campana Extractora y Cocina.










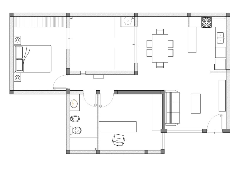
PRIMERA ETAPA
DEPARTAMENTO 2

CARACTER͍STICAS:
• 72 mts2 techados propios + 12 mts2 patio con churrasquera + cochera.
• 2 amplias habitaciones.
• Cocina en U, con bajo mesada y alacena, bacha y griferí­a de primera marca.
• Baño revestido en porcelanato, con sanitarios y griferí­as de primera marca.
• Placares amplios con correderas de aluminio. Espejo de piso a techo.
• Aberturas doble vidrio DVH de gran tamaño, corredizas color bronce colonial, de primera marca.
• Instalaciones para Aire Acondicionado en cada ambiente.
• Cochera privada.
• Incluye Termotanque, Estufa, Campana Extractora y Cocina.










PRIMERA ETAPA
DEPARTAMENTO 3

CARACTER͍STICAS:
• 71 mts2 techados propios + 3 mts2 balcón techado con churrasquera+ cochera.
• 2 amplias habitaciones.
• Cocina con bajo mesada y alacena, bacha y griferí­a de primera marca.
• Baño revestido en porcelanato, con sanitarios y griferí­as de primera marca.
• Placares amplios con correderas de aluminio. Espejo de piso a techo.
• Aberturas doble vidrio DVH de gran tamaño, corredizas color bronce colonial, de primera marca.
• Instalaciones para Aire Acondicionado en cada ambiente.
• Cochera privada.
• Incluye Termotanque, Estufa, Campana Extractora y Cocina.










PRIMERA ETAPA
DEPARTAMENTO 4

CARACTER͍STICAS:
• 72 mts2 techados propios + 3 mts2 balcón techado con churrasquera+ cochera.
• 2 amplias habitaciones.
• Cocina con bajo mesada y alacena, bacha y grifería de primera marca.
• Baño revestido en porcelanato, con sanitarios y griferí­as de primera marca.
• Placares amplios con correderas de aluminio. Espejo de piso a techo.
• Aberturas doble vidrio DVH de gran tamaño, corredizas color bronce colonial, de primera marca.
• Instalaciones para Aire Acondicionado en cada ambiente.
• Cochera privada.
• Incluye Termotanque, Estufa, Campana Extractora y Cocina.










SEGUNDA ETAPA
DEPARTAMENTO I

CARACTER͍STICAS:
• 71 mts2 techados propios + 9 mts2 patio con churrasquera + cochera.
• 2 amplias habitaciones.
• Cocina con bajo mesada y alacena, bacha y grifería de primera marca.
• Baño revestido en porcelanato, con sanitarios y griferí­as de primera marca.
• Placares amplios con correderas de aluminio. Espejo de piso a techo.
• Aberturas doble vidrio DVH de gran tamaño, corredizas color bronce colonial, de primera marca.
• Instalaciones para Aire Acondicionado en cada ambiente.
• Incluye Termotanque, Estufa, Campana Extractora y Cocina.
• Cochera privada.
• Churrasquera.










SEGUNDA ETAPA
DEPARTAMENTO 2

CARACTER͍STICAS - Planta Baja Trasero:
• 72 mts2 techados propios + 12 mts2 patio con CHURRASQUERA.
• Cochera privada.
• Aberturas DOBLE VIDRIO DVH, corredizas color bronce colonial, de primera marca.
• 2 amplias habitaciones.
• Cocina con bajo mesada y alacena, bacha y grifería de primera marca.
• Baño revestido en porcelanato, con sanitarios y griferí­as de primera marca.
• Placares amplios con correderas de aluminio. Espejo de piso a techo.
• Instalaciones para Aire Acondicionado en cada ambiente.
• Incluye Termotanque, Estufa, Campana Extractora y Cocina.










SEGUNDA ETAPA
DEPARTAMENTO 3

CARACTER͍STICAS - Planta Alta Frontal:
• 71 mts2 techados propios + 3 mts 2 balcón techado con CHURRASQUERA.
• Cochera privada.
• Aberturas DOBLE VIDRIO, corredizas color bronce colonial, de primera marca.
• 2 amplias habitaciones.
• Cocina con bajo mesada y alacena, bacha y griferí­a de primera marca.
• Baño revestido en porcelanato, con sanitarios y griferí­as de primera marca.
• Placares amplios con correderas de aluminio. Espejo de piso a techo.
• Instalaciones para Aire Acondicionado en cada ambiente.
• Incluye Termotanque, Estufa, Campana Extractora y Cocina.










SEGUNDA ETAPA
DEPARTAMENTO 4

CARACTER͍STICAS - Planta ALTA Trasero:
• 72 mts2 techados propios + 3 mts2 balcón techado con CHURRASQUERA.
• Cochera privada.
• Aberturas DOBLE VIDRIO, corredizas color bronce colonial, de primera marca.
• 2 amplias habitaciones.
• Cocina con bajo mesada y alacena, bacha y griferí­a de primera marca.
• Baño revestido en porcelanato, con sanitarios y griferí­as de primera marca.
• Placares amplios con correderas de aluminio. Espejo de piso a techo.
• Instalaciones para Aire Acondicionado en cada ambiente.
• Incluye Termotanque, Estufa, Campana Extractora y Cocina.









DEPARTAMENTOS

Inicio 2023 - Finalización Estimada ENERO 2025

PRIMERA ETAPA
DEPARTAMENTO I

CARACTER͍STICAS:
• 71 mts2 techados propios + 9 mts2 patio con churrasquera + cochera.
• 2 amplias habitaciones.
• Cocina con bajo mesada y alacena, bacha y griferí­a de primera marca.
• Baño revestido en porcelanato, con sanitarios y griferí­as de primera marca.
• Placares amplios con correderas de aluminio. Espejo de piso a techo.
• Aberturas doble vidrio DVH de gran tamaño, corredizas color bronce colonial, de primera marca.
• Instalaciones para Aire Acondicionado en cada ambiente.
• Cochera privada.
• Churrasquera.
• Incluye Termotanque, Estufa, Campana Extractora y Cocina.










PRIMERA ETAPA
DEPARTAMENTO 2

CARACTER͍STICAS:
• 72 mts2 techados propios + 12 mts2 patio con churrasquera + cochera.
• 2 amplias habitaciones.
• Cocina en U, con bajo mesada y alacena, bacha y griferí­a de primera marca.
• Baño revestido en porcelanato, con sanitarios y griferí­as de primera marca.
• Placares amplios con correderas de aluminio. Espejo de piso a techo.
• Aberturas doble vidrio DVH de gran tamaño, corredizas color bronce colonial, de primera marca.
• Instalaciones para Aire Acondicionado en cada ambiente.
• Cochera privada.
• Incluye Termotanque, Estufa, Campana Extractora y Cocina.










PRIMERA ETAPA
DEPARTAMENTO 3

CARACTER͍STICAS:
• 71 mts2 techados propios + 3 mts2 balcón techado con churrasquera+ cochera.
• 2 amplias habitaciones.
• Cocina con bajo mesada y alacena, bacha y griferí­a de primera marca.
• Baño revestido en porcelanato, con sanitarios y griferí­as de primera marca.
• Placares amplios con correderas de aluminio. Espejo de piso a techo.
• Aberturas doble vidrio DVH de gran tamaño, corredizas color bronce colonial, de primera marca.
• Instalaciones para Aire Acondicionado en cada ambiente.
• Cochera privada.
• Incluye Termotanque, Estufa, Campana Extractora y Cocina.










PRIMERA ETAPA
DEPARTAMENTO 4

CARACTER͍STICAS:
• 72 mts2 techados propios + 3 mts2 balcón techado con churrasquera+ cochera.
• 2 amplias habitaciones.
• Cocina con bajo mesada y alacena, bacha y grifería de primera marca.
• Baño revestido en porcelanato, con sanitarios y griferí­as de primera marca.
• Placares amplios con correderas de aluminio. Espejo de piso a techo.
• Aberturas doble vidrio DVH de gran tamaño, corredizas color bronce colonial, de primera marca.
• Instalaciones para Aire Acondicionado en cada ambiente.
• Cochera privada.
• Incluye Termotanque, Estufa, Campana Extractora y Cocina.










SEGUNDA ETAPA
DEPARTAMENTO I

CARACTER͍STICAS:
• 71 mts2 techados propios + 9 mts2 patio con churrasquera + cochera.
• 2 amplias habitaciones.
• Cocina con bajo mesada y alacena, bacha y grifería de primera marca.
• Baño revestido en porcelanato, con sanitarios y griferí­as de primera marca.
• Placares amplios con correderas de aluminio. Espejo de piso a techo.
• Aberturas doble vidrio DVH de gran tamaño, corredizas color bronce colonial, de primera marca.
• Instalaciones para Aire Acondicionado en cada ambiente.
• Incluye Termotanque, Estufa, Campana Extractora y Cocina.
• Cochera privada.
• Churrasquera.










SEGUNDA ETAPA
DEPARTAMENTO 2

CARACTER͍STICAS - Planta Baja Trasero:
• 72 mts2 techados propios + 12 mts2 patio con CHURRASQUERA.
• Cochera privada.
• Aberturas DOBLE VIDRIO DVH, corredizas color bronce colonial, de primera marca.
• 2 amplias habitaciones.
• Cocina con bajo mesada y alacena, bacha y grifería de primera marca.
• Baño revestido en porcelanato, con sanitarios y griferí­as de primera marca.
• Placares amplios con correderas de aluminio. Espejo de piso a techo.
• Instalaciones para Aire Acondicionado en cada ambiente.
• Incluye Termotanque, Estufa, Campana Extractora y Cocina.










SEGUNDA ETAPA
DEPARTAMENTO 3

CARACTER͍STICAS - Planta Alta Frontal:
• 71 mts2 techados propios + 3 mts 2 balcón techado con CHURRASQUERA.
• Cochera privada.
• Aberturas DOBLE VIDRIO, corredizas color bronce colonial, de primera marca.
• 2 amplias habitaciones.
• Cocina con bajo mesada y alacena, bacha y griferí­a de primera marca.
• Baño revestido en porcelanato, con sanitarios y griferí­as de primera marca.
• Placares amplios con correderas de aluminio. Espejo de piso a techo.
• Instalaciones para Aire Acondicionado en cada ambiente.
• Incluye Termotanque, Estufa, Campana Extractora y Cocina.










SEGUNDA ETAPA
DEPARTAMENTO 4

CARACTER͍STICAS - Planta ALTA Trasero:
• 72 mts2 techados propios + 3 mts2 balcón techado con CHURRASQUERA.
• Cochera privada.
• Aberturas DOBLE VIDRIO, corredizas color bronce colonial, de primera marca.
• 2 amplias habitaciones.
• Cocina con bajo mesada y alacena, bacha y griferí­a de primera marca.
• Baño revestido en porcelanato, con sanitarios y griferí­as de primera marca.
• Placares amplios con correderas de aluminio. Espejo de piso a techo.
• Instalaciones para Aire Acondicionado en cada ambiente.
• Incluye Termotanque, Estufa, Campana Extractora y Cocina.









ALTA CALIDAD Y
PROFESIONALISMO

En KATSE desarrollamos proyectos inmobiliarios de pequeña escala, acordes a las necesidades actuales. Nos enfocamos zonas estratégicas, funcionalidad y calidad constructiva, para ofrecer departamentos con excelente relación PRECIO-CALIDAD. Nuestro equipo se encuentra trabajando en desarrollos que pueden ser destinados tanto a vivienda familiar como así­ también a asegurar una excelente rentabilidad para aquellos que decidan invertir.
Katse Desarrollos
Back to top