COMPLEJO
VALENTÍ­N I

COMPLEJO VALENTÍ­N I COMPLEJO VALENTÍ­N I

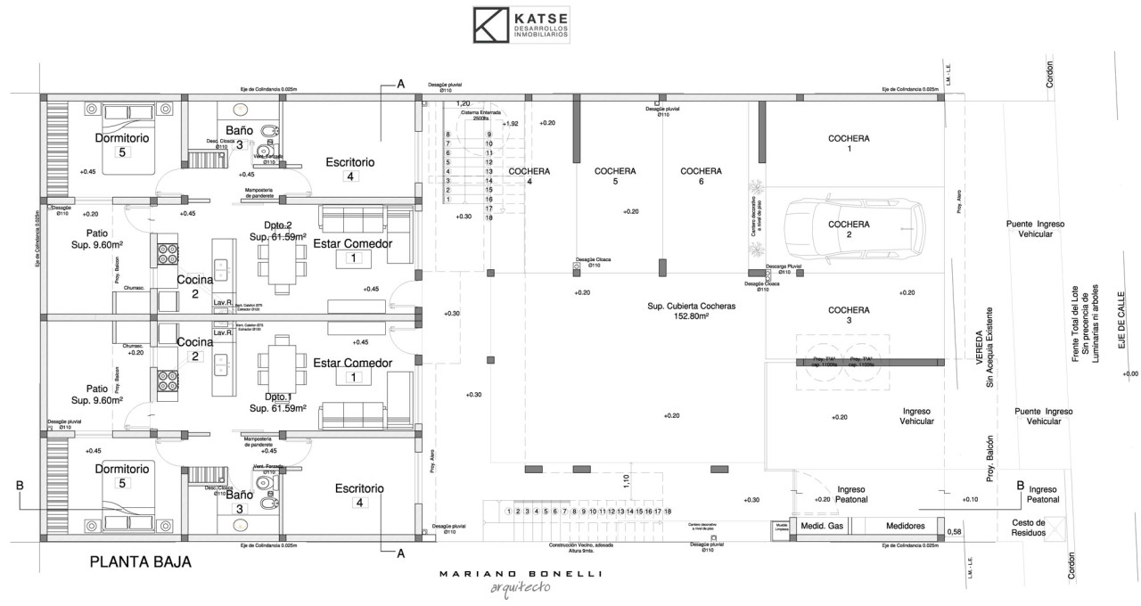
NUEVO PROYECTO TERMINADO y 100% VENDIDO - Finalizado Octubre 2022. 6 modernos departamentos de 2 dormitorios cada uno, cochera privada techada, y churrasquera. Detalles de primera calidad. Basados en los conceptos de: luminosidad, ventilación, funcionalidad y calidad constructiva. Este complejo se encuentra ubicado en calle Dr. Posse, arteria principal de una de las zonas con mejor desarrollo en la provincia de Mendoza. Cerca de la montaña y de nuestro parque General San Martí­n.
Inicio 2020 Finalizado 2022

DEPARTAMENTOS

ACTUALMENTE EN CONSTRUCCIÓN
Inicio Febrero 2020 - Finalizado Octubre 2022

COMPLEJO VALENTÍ­N I
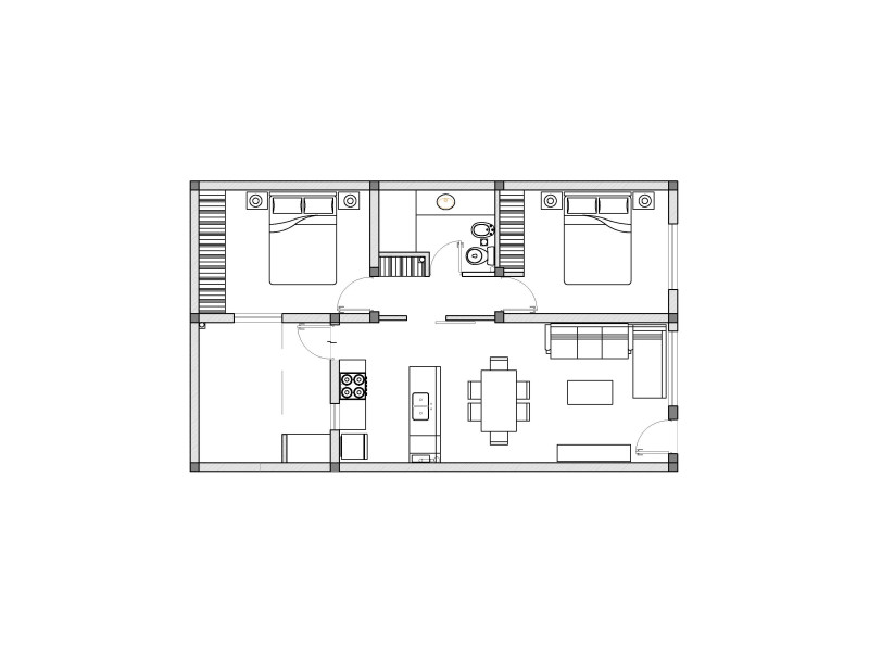
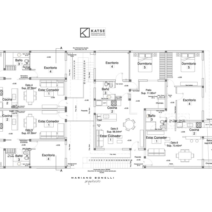
DEPARTAMENTO I

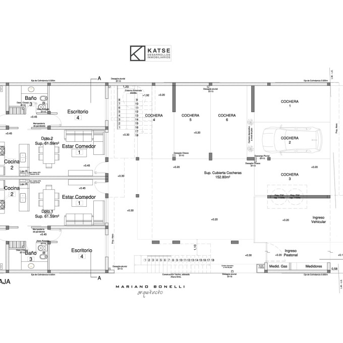
CARACTERÍSTICAS - PLANTA BAJA Baja Trasero:
• 62 mts2 techados propios + 9 mts2 patio con CHURRASQUERA.
• Cochera privada TECHADA.
• Aberturas DOBLE VIDRIO corredizas color aluminio anodizado, de primera marca.
• 2 amplias habitaciones con placares texturados (puertas y espejo de piso a techo).
• Cocina con bajo mesada y alacena, bacha y griferí­a de primera marca.
• Baño revestido en porcelanato, con sanitarios y griferí­as de primera marca.
• Instalaciones para Aire Acondicionado en cada ambiente.
• Incluye Calefón, Estufa, Campana Extractora y Cocina.
• Pisos símil Madera.

COMPLEJO VALENTÍ­N I
DEPARTAMENTO 2

CARACTERÍSTICAS - PLANTA BAJA Trasero:
• 62 mts2 techados propios + 9 mts2 patio con CHURRASQUERA.
• Cochera privada TECHADA.
• Aberturas DOBLE VIDRIO corredizas color aluminio anodizado, de primera calidad.
• 2 amplias habitaciones con amplios placares texturados (puertas y espejo de piso a techo).
• Cocina con bajo mesada y alacena, mueble barra desayunador con bacha y griferí­a de primera marca.
• Baño revestido en porcelanato, con sanitarios y griferí­as de primera marca.
• Instalaciones para Aire Acondicionado en cada ambiente.
• Incluye Calefón, Estufa, Campana Extractora y Cocina.
• Pisos símil Madera.

COMPLEJO VALENTÍ­N I
DEPARTAMENTO 3

CARACTER͍STICAS - PLANTA ALTA Trasero:
• 62 mts2 techados propios + 3 mts2 balcón techado con CHURRASQUERA.
• Cochera privada TECHADA.
• Aberturas DOBLE VIDRIO corredizas color aluminio anodizado, de primera calidad.
• 2 amplias habitaciones con placares texturados (puertas y espejo de piso a techo).
• Cocina con bajo mesada y alacena, mueble barra desayunadora con bacha y grifería de primera marca.
• Baño revestido en porcelanato, con sanitarios y griferí­as de primera marca.
• Instalaciones para Aire Acondicionado en cada ambiente.
• Incluye Calefón, Estufa, Campana Extractora y Cocina.
• Pisos simil Madera.

COMPLEJO VALENTÍ­N I
DEPARTAMENTO 4

CARACTER͍STICAS - PLANTA ALTA Trasero:
• 62 mts2 techados propios + 3 mts2 balcón techado con CHURRASQUERA.
• Cochera privada TECHADA.
• Aberturas DOBLE VIDRIO corredizas color aluminio anodizado, de primera calidad.
• 2 amplias habitaciones con placares texturados (puertas y espejo de piso a techo).
• Cocina con bajo mesada y alacena, mueble barra desayunador con bacha y griferí­a de primera marca.
• Baño revestido en porcelanato, con sanitarios y griferí­as de primera marca.
• Instalaciones para Aire Acondicionado en cada ambiente.
• Incluye Calefón, Estufa, Campana Extractora y Cocina.
• Pisos sí­mil Madera.

COMPLEJO VALENTÍ­N I
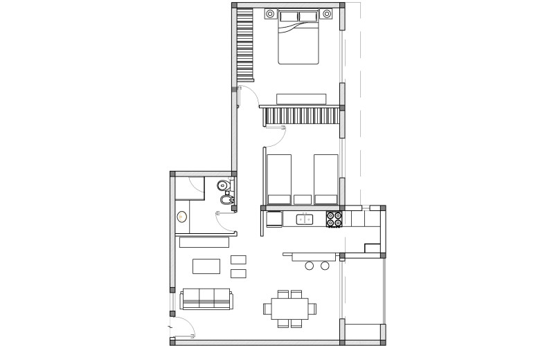
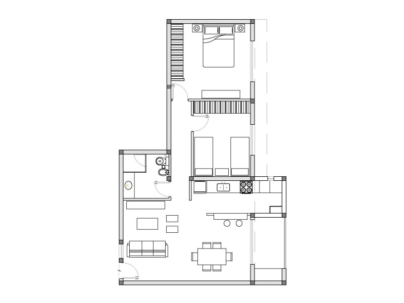
DEPARTAMENTO 5

CARACTERÍSTICAS - PLANTA ALTA Central:
• 67 mts2 techados propios + 12 mts2 patio PRIVADO con CHURRASQUERA.
• Cochera privada TECHADA.
• Aberturas DOBLE VIDRIO corredizas color aluminio anodizado, de primera calidad.
• 2 amplias habitaciones con placares texturados (puertas y espejo de piso a techo).
• Cocina con bajo mesada y alacena, mueble barra desayunador con bacha y griferí­a de primera marca.
• Baño revestido en porcelanato, con sanitarios y griferí­as de primera marca.
• Instalaciones para Aire Acondicionado en cada ambiente.
• Incluye Calefón, Estufa, Campana Extractora y Cocina.
• Pisos sí­mil Madera.

COMPLEJO VALENTÍ­N I
DEPARTAMENTO 6

CARACTER͍STICAS - PLANTA ALTA Frontal - Vista Norte:
• 74 mts2 techados propios + 7 mts2 balcón techado con CHURRASQUERA.
• Cochera privada TECHADA.
• Aberturas DOBLE VIDRIO corredizas color aluminio anodizado, de primera calidad.
• 2 amplias habitaciones con placares texturados (puertas y espejo de piso a techo).
• Cocina con bajo mesada y alacena con bacha y griferí­a de primera marca.
• Baño revestido en porcelanato, con sanitarios y griferías de primera marca.
• Instalaciones para Aire Acondicionado en cada ambiente.
• Incluye Calefón, Estufa, Campana Extractora y Cocina.
• Pisos símil Madera.

DEPARTAMENTOS

ACTUALMENTE EN CONSTRUCCIÓN
Inicio Febrero 2020 - Finalizado Octubre 2022

COMPLEJO VALENTÍ­N I
DEPARTAMENTO I

CARACTERÍSTICAS - PLANTA BAJA Baja Trasero:
• 62 mts2 techados propios + 9 mts2 patio con CHURRASQUERA.
• Cochera privada TECHADA.
• Aberturas DOBLE VIDRIO corredizas color aluminio anodizado, de primera marca.
• 2 amplias habitaciones con placares texturados (puertas y espejo de piso a techo).
• Cocina con bajo mesada y alacena, bacha y griferí­a de primera marca.
• Baño revestido en porcelanato, con sanitarios y griferí­as de primera marca.
• Instalaciones para Aire Acondicionado en cada ambiente.
• Incluye Calefón, Estufa, Campana Extractora y Cocina.
• Pisos símil Madera.

COMPLEJO VALENTÍ­N I
DEPARTAMENTO 2

CARACTERÍSTICAS - PLANTA BAJA Trasero:
• 62 mts2 techados propios + 9 mts2 patio con CHURRASQUERA.
• Cochera privada TECHADA.
• Aberturas DOBLE VIDRIO corredizas color aluminio anodizado, de primera calidad.
• 2 amplias habitaciones con amplios placares texturados (puertas y espejo de piso a techo).
• Cocina con bajo mesada y alacena, mueble barra desayunador con bacha y griferí­a de primera marca.
• Baño revestido en porcelanato, con sanitarios y griferí­as de primera marca.
• Instalaciones para Aire Acondicionado en cada ambiente.
• Incluye Calefón, Estufa, Campana Extractora y Cocina.
• Pisos símil Madera.

COMPLEJO VALENTÍ­N I
DEPARTAMENTO 3

CARACTER͍STICAS - PLANTA ALTA Trasero:
• 62 mts2 techados propios + 3 mts2 balcón techado con CHURRASQUERA.
• Cochera privada TECHADA.
• Aberturas DOBLE VIDRIO corredizas color aluminio anodizado, de primera calidad.
• 2 amplias habitaciones con placares texturados (puertas y espejo de piso a techo).
• Cocina con bajo mesada y alacena, mueble barra desayunadora con bacha y grifería de primera marca.
• Baño revestido en porcelanato, con sanitarios y griferí­as de primera marca.
• Instalaciones para Aire Acondicionado en cada ambiente.
• Incluye Calefón, Estufa, Campana Extractora y Cocina.
• Pisos simil Madera.

COMPLEJO VALENTÍ­N I
DEPARTAMENTO 4

CARACTER͍STICAS - PLANTA ALTA Trasero:
• 62 mts2 techados propios + 3 mts2 balcón techado con CHURRASQUERA.
• Cochera privada TECHADA.
• Aberturas DOBLE VIDRIO corredizas color aluminio anodizado, de primera calidad.
• 2 amplias habitaciones con placares texturados (puertas y espejo de piso a techo).
• Cocina con bajo mesada y alacena, mueble barra desayunador con bacha y griferí­a de primera marca.
• Baño revestido en porcelanato, con sanitarios y griferí­as de primera marca.
• Instalaciones para Aire Acondicionado en cada ambiente.
• Incluye Calefón, Estufa, Campana Extractora y Cocina.
• Pisos sí­mil Madera.

COMPLEJO VALENTÍ­N I
DEPARTAMENTO 5

CARACTERÍSTICAS - PLANTA ALTA Central:
• 67 mts2 techados propios + 12 mts2 patio PRIVADO con CHURRASQUERA.
• Cochera privada TECHADA.
• Aberturas DOBLE VIDRIO corredizas color aluminio anodizado, de primera calidad.
• 2 amplias habitaciones con placares texturados (puertas y espejo de piso a techo).
• Cocina con bajo mesada y alacena, mueble barra desayunador con bacha y griferí­a de primera marca.
• Baño revestido en porcelanato, con sanitarios y griferí­as de primera marca.
• Instalaciones para Aire Acondicionado en cada ambiente.
• Incluye Calefón, Estufa, Campana Extractora y Cocina.
• Pisos sí­mil Madera.

COMPLEJO VALENTÍ­N I
DEPARTAMENTO 6

CARACTER͍STICAS - PLANTA ALTA Frontal - Vista Norte:
• 74 mts2 techados propios + 7 mts2 balcón techado con CHURRASQUERA.
• Cochera privada TECHADA.
• Aberturas DOBLE VIDRIO corredizas color aluminio anodizado, de primera calidad.
• 2 amplias habitaciones con placares texturados (puertas y espejo de piso a techo).
• Cocina con bajo mesada y alacena con bacha y griferí­a de primera marca.
• Baño revestido en porcelanato, con sanitarios y griferías de primera marca.
• Instalaciones para Aire Acondicionado en cada ambiente.
• Incluye Calefón, Estufa, Campana Extractora y Cocina.
• Pisos símil Madera.

ALTA CALIDAD Y
PROFESIONALISMO

En KATSE desarrollamos proyectos inmobiliarios de pequeña escala, acordes a las necesidades actuales. Nos enfocamos zonas estratégicas, funcionalidad y calidad constructiva, para ofrecer departamentos con excelente relación PRECIO-CALIDAD. Nuestro equipo se encuentra trabajando en desarrollos que pueden ser destinados tanto a vivienda familiar como así­ también a asegurar una excelente rentabilidad para aquellos que decidan invertir.
Katse Desarrollos
Back to top