CASA
MERLOT

CASA MERLOT CASA MERLOT

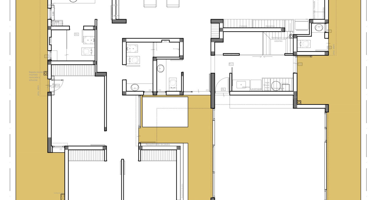
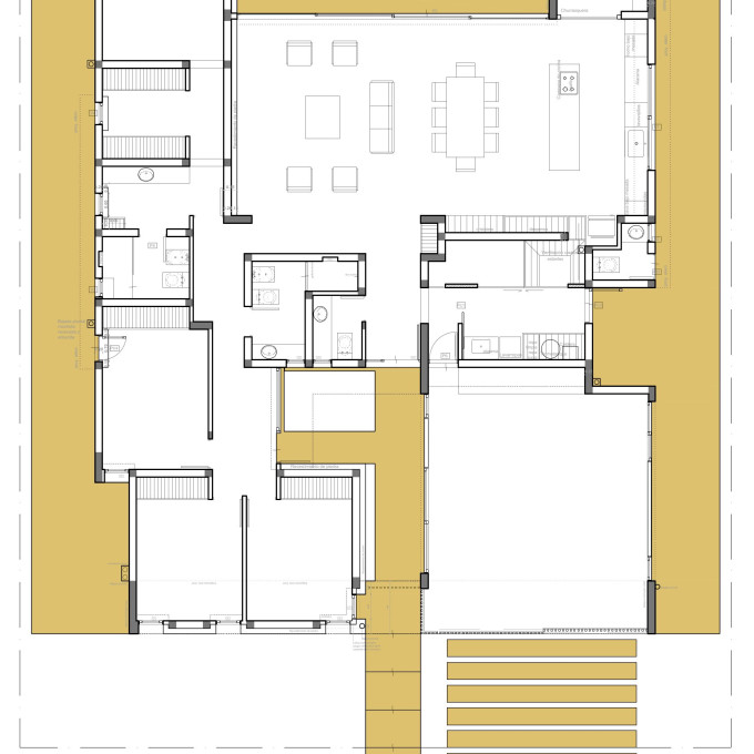
Nuestro primer desarrollo de VIVIENDA FAMILIAR, con elementos naturales como piedra, hormigón y madera como protagonistas. Es una amplia y moderna casa desarrollada en Planta Baja. Consta de 1 dormitorio principal con vestidor y baño en suite, otros 3 dormitorios con amplios placares y otros 3 baños (1 con ducha). Un amplio living comedor integrado a una cocina con isla, todo conectado a una amplia galería techada, lo cual logra una hermosa integración con el patio. Posee además una cochera doble techada y cerrada, la cual cumple la función de quincho con churrasquera para el invierno. Este desarrollo demuestra nuestra evolución en tan sólo unos pocos años de experiencia.
Inicio ENERO 2021 - Finalizado 2022

ALTA CALIDAD Y
PROFESIONALISMO

En KATSE desarrollamos proyectos inmobiliarios de pequeña escala, acordes a las necesidades actuales. Nos enfocamos zonas estratégicas, funcionalidad y calidad constructiva, para ofrecer departamentos con excelente relación PRECIO-CALIDAD. Nuestro equipo se encuentra trabajando en desarrollos que pueden ser destinados tanto a vivienda familiar como así­ también a asegurar una excelente rentabilidad para aquellos que decidan invertir.
Katse Desarrollos
Back to top